商铺名称:元炜科技(天津)有限公司
联系人:苑经理(小姐)
联系手机:
固定电话:
企业邮箱:756247296@qq.com
联系地址:天津北辰大厦2106
邮编:
联系我时,请说是在地方电气网上看到的,谢谢!
| 产品参数 | |||
|---|---|---|---|
| 品牌 | 元炜 | ||
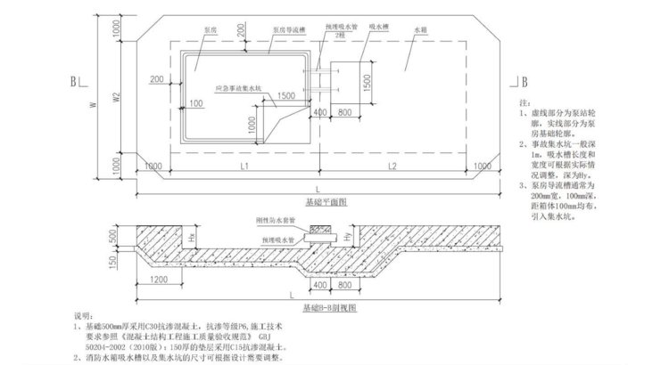
| 尺寸 | 1000mm×1000mm×1000mmcm | ||
| 加工定制 | 支持 | ||
| 是否进口 | 否 | ||
| 产地 | 天津 | ||
| 是否加工定制 | 是 | ||
| 保温功能 | 保温 | ||
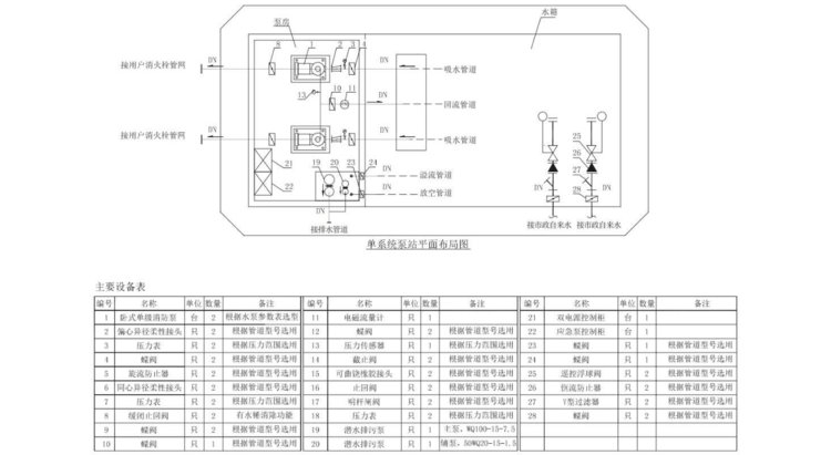
| 功能 | 生活水箱,消防水箱,供水设备 | ||
| 设备名称 | 一体化地埋式消防水箱 | ||
| 售后 | 厂家服务 | ||
| 运行方式 | 全自动 | ||
| 冷却方式 | 常规冷却 | ||
| 可售卖地 | 全国 | ||














