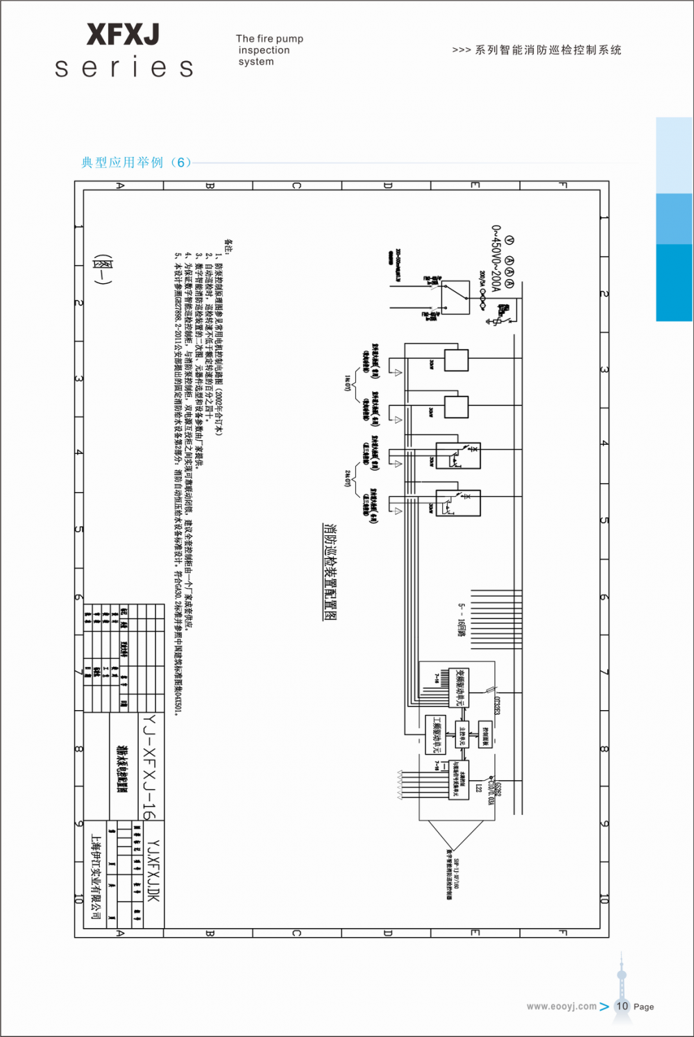
消防巡检控制|YJ-XFXJ/02系列水泵控制的巡回检测 伊江实业
消防巡检控制|YJ-XFXJ/02系列水泵控制的巡回检测 伊江实业
产品价格:¥面议(人民币)
  • 规格:完善
  • 发货地:本地至全国
  • 品牌:
  • 最小起订量:1
  • 诚信商家
    会员级别:钻石会员
    认证类型:企业认证
    企业证件:通过认证

    商铺名称:上海伊江实业有限公司

    联系人:焦卫宽(先生)

    联系手机:

    固定电话:

    企业邮箱:elooyj@163.com

    联系地址:上海市嘉定区江桥工业园区华江路129弄

    邮编:201803

    联系我时,请说是在地方电气网上看到的,谢谢!

    商品详情
      产品特性: 消防巡检 是否进口:
      产地: 上海 加工定制:
      品牌: 上海伊江 型号: YJ-XFXJ/02
      额定电流: 360A 壳体防护等级: IP20-IP55可选
      外形尺寸: 1000*800*2000mm 物料编号: V11002
      系统软件: Linux 工作温度: -30℃~70℃
      存储温度: -10℃~60℃ 工作湿度: 10%RH~90RH
      输入范围: DC9V~DC36V 功耗: ≤50W
      逻辑处理: 软PLC(梯形图逻辑编辑) 形状: 长方形
      电器级别: AC-33B 显示方式: 液晶显示屏















    0571-87774297